(910) 943 49 66
Websteel
 عن قرب

نماذج ورسومات

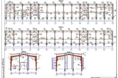
عند تصميم بناء سريع التركيب في برنامج ويب ستيل ستحصلون على رسومات المشاريع التالية:

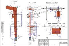
  • تشكيلة أعمدة معدنية: مخطط الأعمدة ورفوف البناء نصف الخشبية، مخطط العوارض والروافد الأساسية، المواصفات التقنية للفولاذ، المقاطع الخاصة، عقد وصل الأعمدة المعدنية، معلومات عامة.
  • تشكيلة التصميم المعماري: ترتيب الألواح والصفائح على الجدران والسقوف، عُقد تثبيت العناصر الإضافية، مواصفات الألواح والإكسسوارات مع المقاطع الذاتية ومقاطع العناصر الإضافية. مشاريع الأعمدة المعدنية والتصميم المعماري تتحد وتشكل مشروع جديد أ س.
  • تشكيلة الأعمدة الإسمنتية الحديدية: مخطط القواعد، معلومات عامة، أنواع ومقاطع القواعد، أنواع المصنوعات الهيكلية، ربط وهيكلة العوارض القاعدية واالمواصفات. عند شراء بناء من شركة ب ك فيستا يحصل الزبون على كل المشروع مجاناً.
طرح سؤال/حجز حساب

* حقل إلزامي للتعبئة.
** من الضروري تعبئة أحد الحقلين - "هاتف" أو "إيميل".

نضمن أن المعلومات الشخصية التي تعلنون عنها سوف تستخدم بشكل استثنائي بهدف معالجة استفساراتكم نحن نعمل طبقاً للقانون الاتحادي الصادر في 27/7/2006 رقم 152-ف3 "حول البيانات الشخصية".

أنا أؤكد موافقتي على معالجة البيانات الشخصية واطلعت ووافقت على شروط سياسة الموثوقية.
هاتف المتصل طرح السؤال حساب على الانترنت

هاتف المتصل

*حقل إلزامي للتعبئة.

أنا أؤكد موافقتي على معالجة البيانات الشخصية واطلعت ووافقت على شروط سياسة الموثوقية.
طرح سؤال/حجز حساب

* حقل إلزامي للتعبئة.
** من الضروري تعبئة أحد الحقلين - "هاتف" أو "إيميل".

نضمن أن المعلومات الشخصية التي تعلنون عنها سوف تستخدم بشكل استثنائي بهدف معالجة استفساراتكم نحن نعمل طبقاً للقانون الاتحادي الصادر في 27/7/2006 رقم 152-ف3 "حول البيانات الشخصية".

أنا أؤكد موافقتي على معالجة البيانات الشخصية واطلعت ووافقت على شروط سياسة الموثوقية.